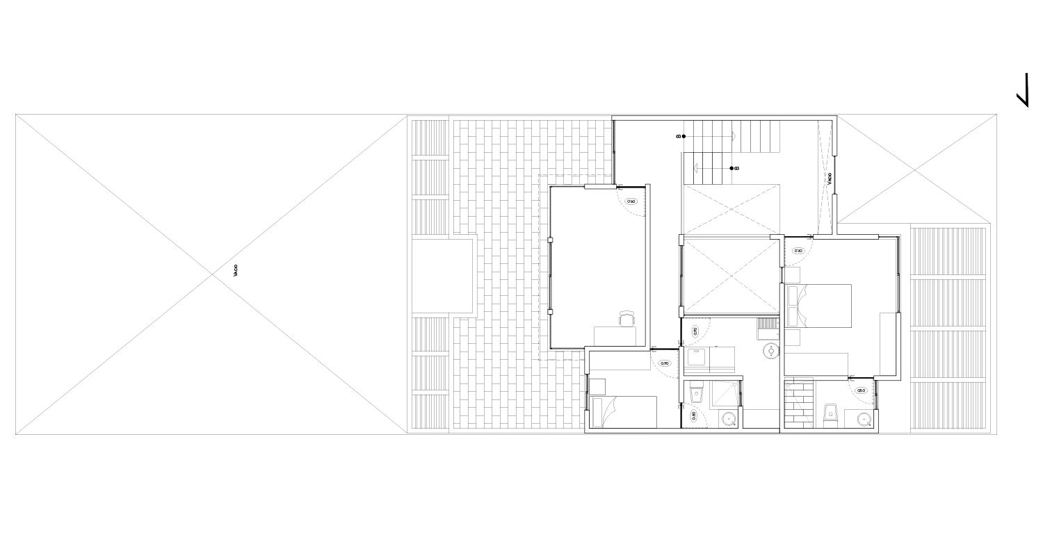
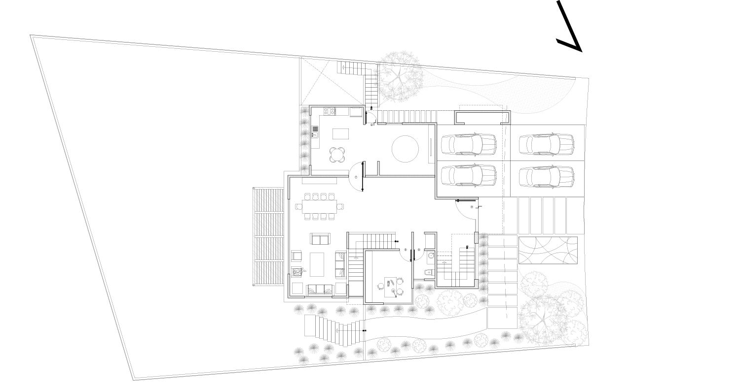
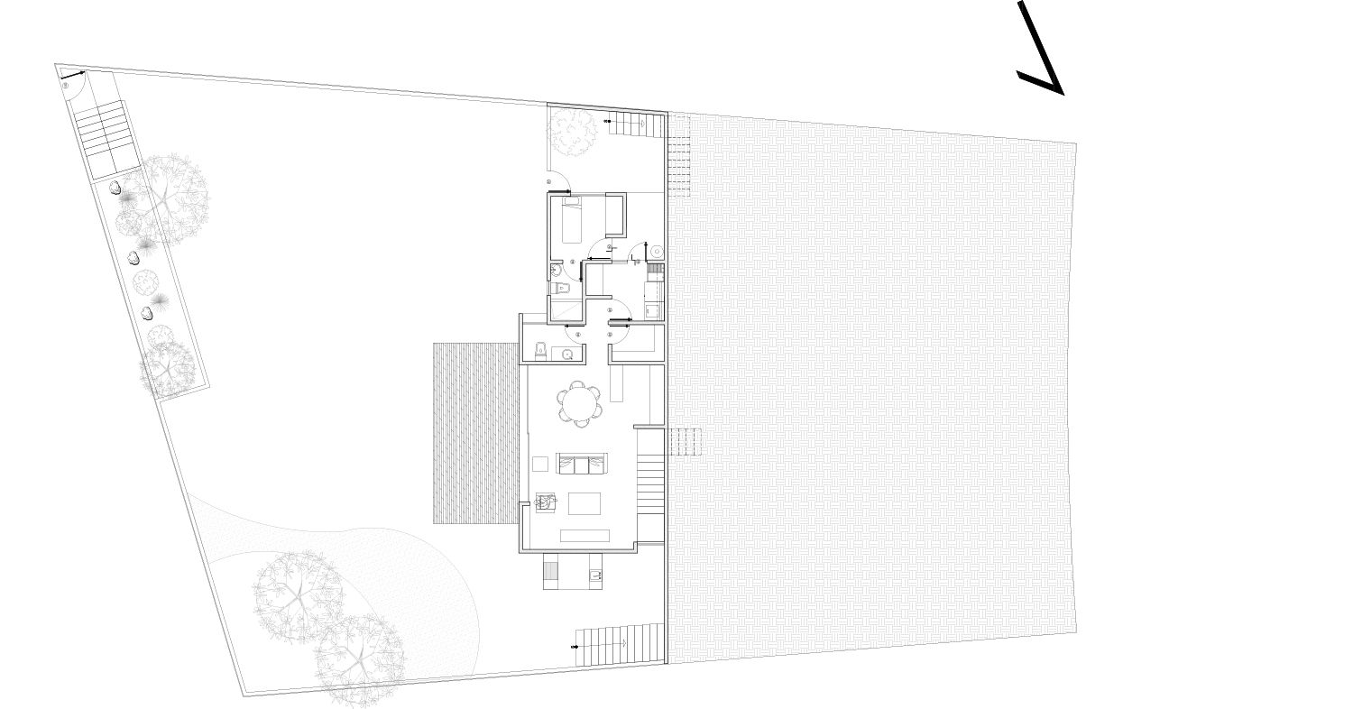
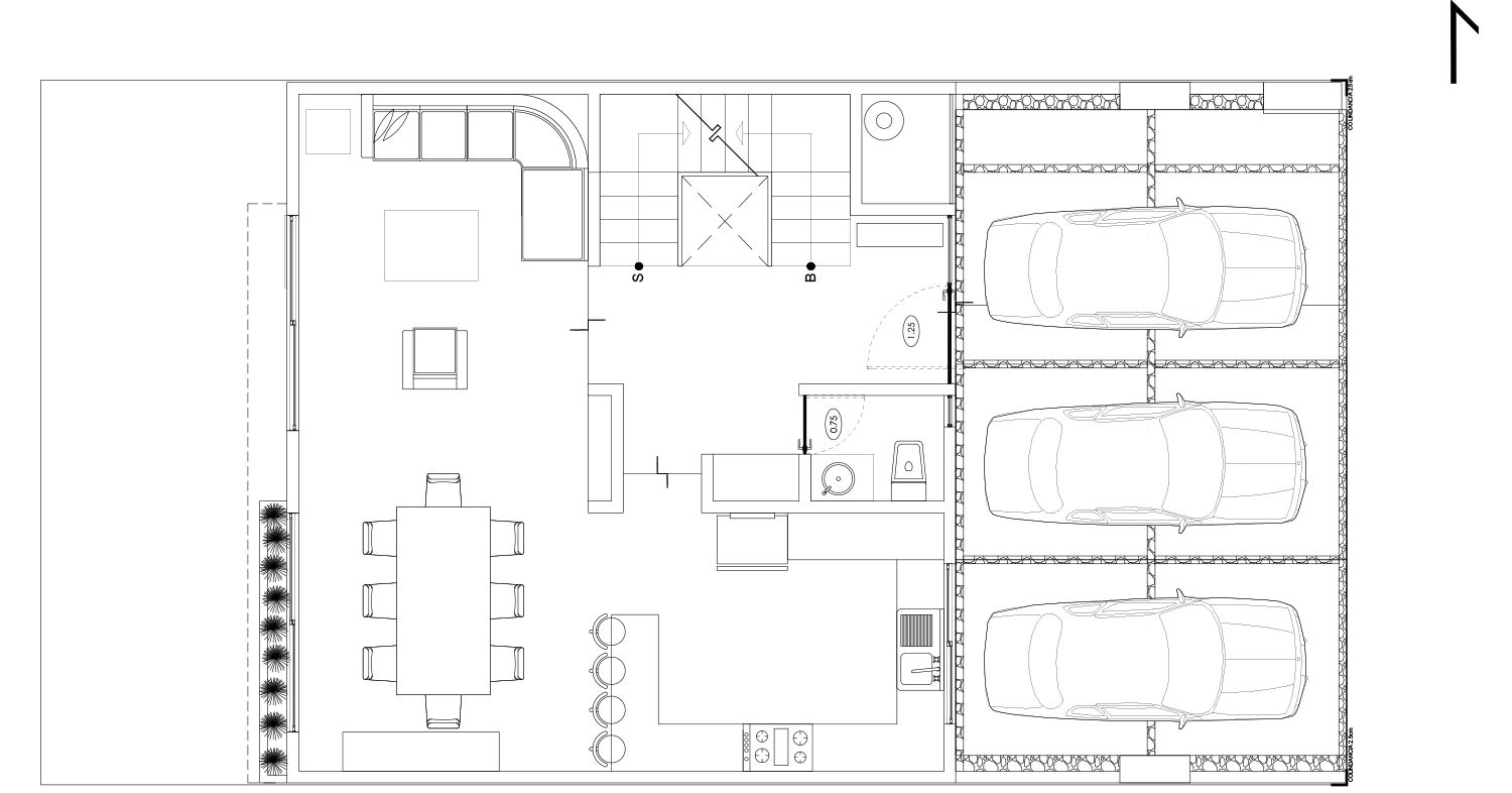
Proyectos
Arquitectura en desarrollo









Verde Caliza
Año: 2009
Ubicación: Monterrey, Nuevo León
Estado: concurso
Superficie terreno: 400 hectáreas
Componentes :
. hotel
. centro de convenciones
. torres de departamentos
. área de concierto
. museo
. centro comercial
. villas comerciales
. villas residenciales
. torres de departamentos
. torres de oficinas
. parques y áreas verdes
Colaboradores:
Diseño: Daniela Pedrero
Luis Ruíz
Armando Rodriguez Trejo
** primer lugar concurso arquitetura joven 2009
Verde Caliza
USOS MIXTOS











Torre Natura
Año: 2008
Ubicación: monterrey, nuevo león
Estado: concurso
Superficie terreno: 20,660m2
Superficie construida:
10,800m2 oficinas
7,950m2 residencial
3,600m2 hotel
1,800m2 centro convenciones
750m2 comercial
15,000m2 estacionamiento
Colaboradores:
Diseño: Patricia Ramos VM
Guillermo Ruíz Ibarra
Armando Rodriguez Trejo
** 1er lugar en concurso ‘arquitectura joven 2008’
Torre Natura
USOS MIXTOS
¡Hagámos Arte!
Envíanos un mensaje y en breve
nos comunicaremos contigo.




















































































































