Proyectos

Arquitectura en desarrollo

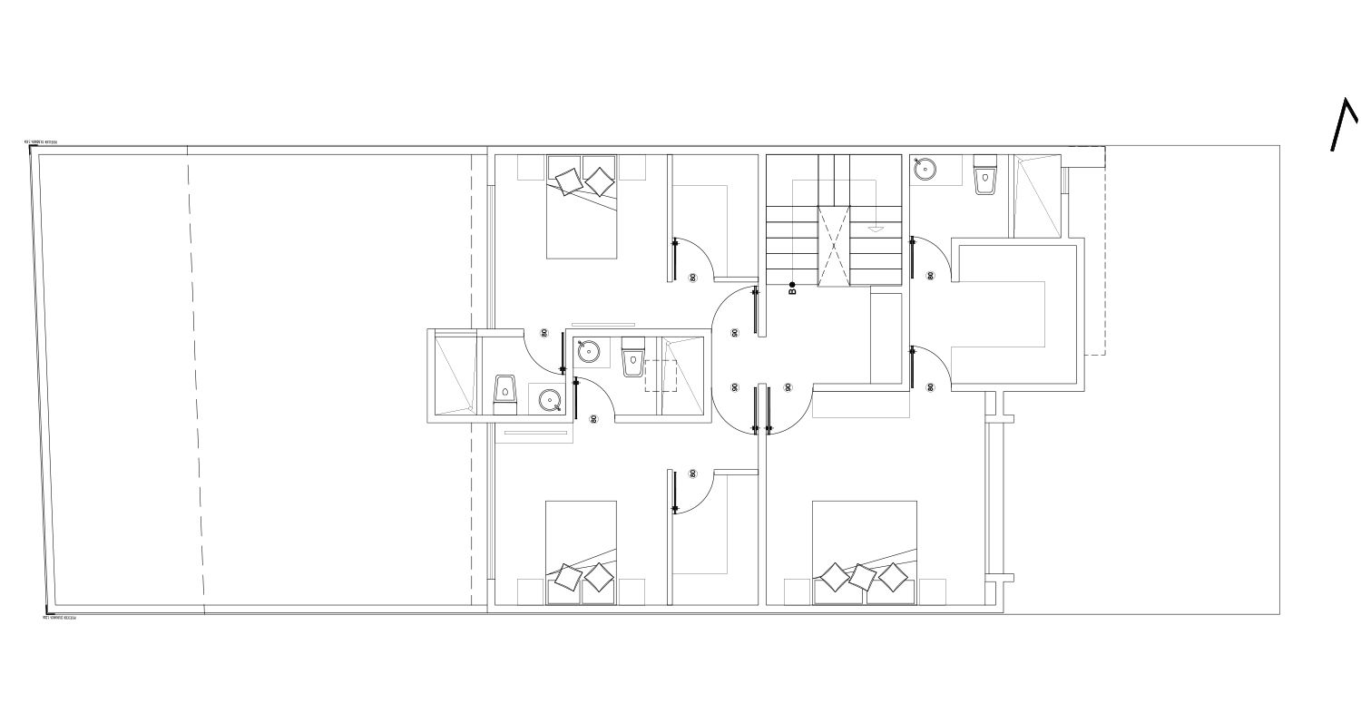
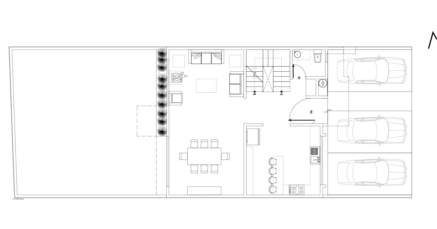
Bellavista

Año: 2022

Ubicación: Atizapán, Estado de México

Estado: En construcción

Superficie terreno: 274m2

Superficie construida: 430.55m2​

Colaboradores:

Diseño:  Armando Rodriguez Trejo

Construcción: Armando Rodriguez Trejo

 

Bellavista

RESIDENCIAL

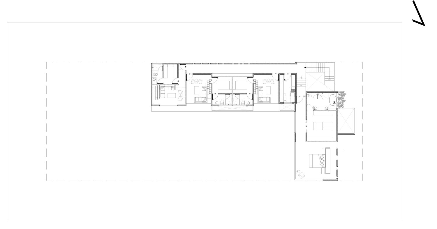
Vega 2

Año: 2022

Ubicación: Atizapán, Estado de México

Estado: En construcción (remodelación)

Colaboradores:

Diseño:  Armando Rodriguez Trejo

Construcción: Anromi Construcciones 

Vega 2

RESIDENCIAL

AZ-1

Año: 2022

Ubicación: Naucalpan, Estado de México

Estado: En construcción

Superficie terreno: 647m2

Superficie construida: 271.90m2​

Colaboradores:

Diseño:  Armando Rodriguez Trejo

Construcción: Anromi Construcciones

AZ-1

RESIDENCIAL

Fuentes 93

Año: 2022

Ubicación: Tultitlán, Estado de México

Estado: En diseño

Superficie terreno: 1,026m2

Superficie construida: 353.15m2​

Colaboradores:

Diseño:  Armando Rodriguez Trejo

 

Fuentes 93

RESIDENCIAL

Bernal

Año: 2021

Ubicación: Peña de Bernal, Querétaro

Estado: En diseño

Superficie terreno: 608m2

Superficie construida: 299.40m2​

Colaboradores:

Diseño:  Armando Rodriguez Trejo

 

Bernal

RESIDENCIAL

Rosas 219

Año: 2021

Ubicación: Atizapán, Estado de México

Estado: En construcción (remodelación)

Colaboradores:

Diseño:  Armando Rodriguez Trejo

 

Rosas 219

RESIDENCIAL

Canteras 4

Año: 2020

Ubicación: Atizapán, Estado de México

Estado: En diseño

Superficie terreno: 800m2

Superficie construida: 1,213.10m2​

Colaboradores:

Diseño:  Armando Rodriguez Trejo

 

Canteras 4

RESIDENCIAL

Lilas 9

Año: 2016

Ubicación: Atizapán, Estado de México

Estado: Construida

Superficie terreno: 915m2

Superficie construida: 450m2​

Colaboradores:

Diseño:  Armando Rodriguez Trejo

Construcción: Anromi Construcciones

Publicación:

Arquitectos Mexicanos “Hogares en Evolución” Edición 2019

Lilas 9

RESIDENCIAL

Punta 28

Año: 2019

Ubicación: Atizapán, Estado de México

Estado: Construida

Superficie terreno: 300m2

Superficie construida: 324m2​

Colaboradores:

Diseño:  Armando Rodriguez Trejo

Construcción: Armando Rodríguez Trejo

Interiores: Patricia Ramos VM

Punta 28

RESIDENCIAL

Lilas 10

Año: 2015

Ubicación: Atizapán, Estado de México

Estado: Construida

Superficie terreno: 865m2

Superficie construida: 433m2​

Colaboradores:

Diseño:  Armando Rodriguez Trejo

Construcción: Anromi Construcciones

Lilas 10

RESIDENCIAL

Moncayo 548

Año: 2019

Ubicación: Atizapán, Estado de México

Estado: Construida

Superficie terreno: 153m2

Superficie construida: 251m2​

Colaboradores:

Diseño:  Armando Rodriguez Trejo

Construcción: Anromi Construcciones

Moncayo 548

RESIDENCIAL

Lilas 7

Año: 2016

Ubicación: Atizapán, Estado de México

Estado: Construida

Superficie terreno: 824m2

Superficie construida: 430m2​

Colaboradores:

Diseño:  Armando Rodriguez Trejo

Construcción: Anromi Construcciones

Lilas 7

RESIDENCIAL

Moncayo 405

Año: 2020

Ubicación: Atizapán, Estado de México

Estado: En Proceso

Superficie terreno: 150m2

Superficie construida: 289m2​

Colaboradores:

Diseño:  Armando Rodriguez Trejo

Moncayo 405

RESIDENCIAL

Mocayo 404

Año: 2020

Ubicación: Atizapán, Estado de México

Estado: En Proceso

Superficie terreno: 150m2

Superficie construida: 300m2​

Colaboradores:

Diseño:  Armando Rodriguez Trejo

Mocayo 404

RESIDENCIAL

Vento 24

Año: 2016

Ubicación: Atizapán, Estado de México

Estado: Construida

Superficie terreno: 250m2

Superficie construida: 360m2​

Colaboradores:

Diseño: Armando Rodriguez Trejo

Conntrucción: Anromi Construcciones

Vento 24

RESIDENCIAL

Alondra 7

Año: 2020

Ubicación: Atizapán, Estado de México

Estado: Remodelación terminada

Colaboradores:

Diseño:  Armando Rodriguez Trejo

Construcción: Armando Rodriguez Trejo

Alondra 7

RESIDENCIAL

R2

Año: 2014

Ubicación: Aguascalientes, Ags.

Estado: proyecto

Superficie terreno: 1,125m2

Superficie construida: 520m2​

Colaboradores:

Diseño:  Armando Rodriguez Trejo

R2

RESIDENCIAL

NAY-1

Año: 2018

Ubicación: Atizapán, Estado de México

Estado: Conceptual

Superficie terreno: 1,400m2

Superficie construida: 787m2​

Colaboradores:

Diseño:  Patricia Ramos VM y Armando Rodriguez Trejo

NAY-1

RESIDENCIAL

Carrizos 4

Año: 2015

Ubicación: Atizapán, Estado de México

Estado: Construida

Superficie terreno: 1,014m2

Superficie construida: 685m2​

Colaboradores:

Diseño:  Armando Rodriguez Trejo

Construcción: Anromi Construcciones

Carrizos 4

RESIDENCIAL

Deco 12

Año: 2019

Ubicación: Atizapán, Estado de México

Estado: Construida

Superficie terreno: 214.34m2

Superficie construida: 253.48m2​

Colaboradores:

Diseño:  Armando Rodriguez Trejo

Construcción: Anromi Construcciones

Deco 12

RESIDENCIAL

¡Hagámos Arte!

Envíanos un mensaje y en breve
nos comunicaremos contigo.